Haus B Vogelhütteweg 16, 5722 Gränichen

Baubeginn Herbst 2024

Suchen Sie naturnahes und ruhiges Wohnen mit hoher Wohnqualität?

Im nordöstlichen Teil von Gränichen erwartet Sie ein neues und modernes Einfamilienhaus an sonniger und erhöhter Lage. In nur wenigen Gehminuten erreichen Sie ein grosses Wald- und Naherholungsgebiet.

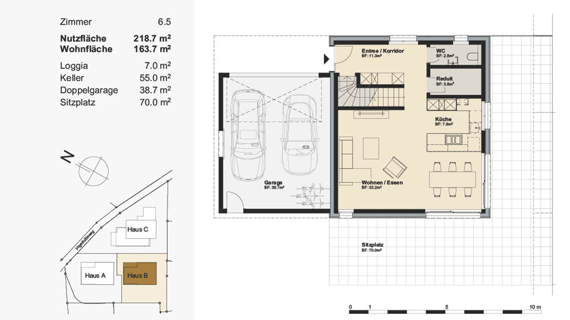
Das Einfamilienhaus überzeugt unter anderem durch eine klare Struktur im Grundriss. Im Erdgeschoss befinden sich der grosszügige und lichtdurchflutete Wohn- und Essbereich mit offener Küche und Ausgang zum Sitzplatz und Garten, Reduit und WC. Die grosszügige Doppelgarage, welche genügend zusätzlichen Platz für Velos oder Motorräder bietet, ist auf demselben Geschoss angeordnet. Im Obergeschoss befinden sich das Elternschlafzimmer mit Ausgang zur Loggia und angrenzender Ankleide, drei Zimmer und zwei Nasszellen. Im Untergeschoss hat es zwei Kellerräume und den Technikraum.

Dieser Neubau beeindruckt durch den hohen Ausbaustandard wie Wärmeerzeugung mittels eigener Erdsondenheizung und Freecooling, eigene Photovoltaikanlage, hinterlüftete verputzte Fassade, hochwertiger Eichenparkett, grosszügige Budgetpositionen für Küche, Sanitäreinrichtungen usw.

Möchten Sie mehr wissen? Gerne sind wir für Sie da. Verlangen Sie unsere detaillierten Verkaufsunterlagen.

  • Objekttyp Einfamilienhaus
  • Zimmer 6.5
  • Baustart Herbst 2024
  • Nettowohnfläche ca. 164 m2
  • Nutzfläche ca. 219 m2
  • Kubatur nach SIA 416 ca. 989 m3
  • Doppelgarage ca. 39 m2
  • Grundstücksfläche 454 m2

Kontaktperson

Jürg Bichsel

    Anfrage Verkaufsdokumentation

    Kontaktangaben

    Nachricht

     

    • Objekttyp Einfamilienhaus
    • Zimmer 6.5
    • Baustart Herbst 2024
    • Nettowohnfläche ca. 164 m2
    • Nutzfläche ca. 219 m2
    • Kubatur nach SIA 416 ca. 989 m3
    • Doppelgarage ca. 39 m2
    • Grundstücksfläche 454 m2

    Kontaktperson

    Jürg Bichsel